133 Phillips Road, Sagamore Beach, MA 02562
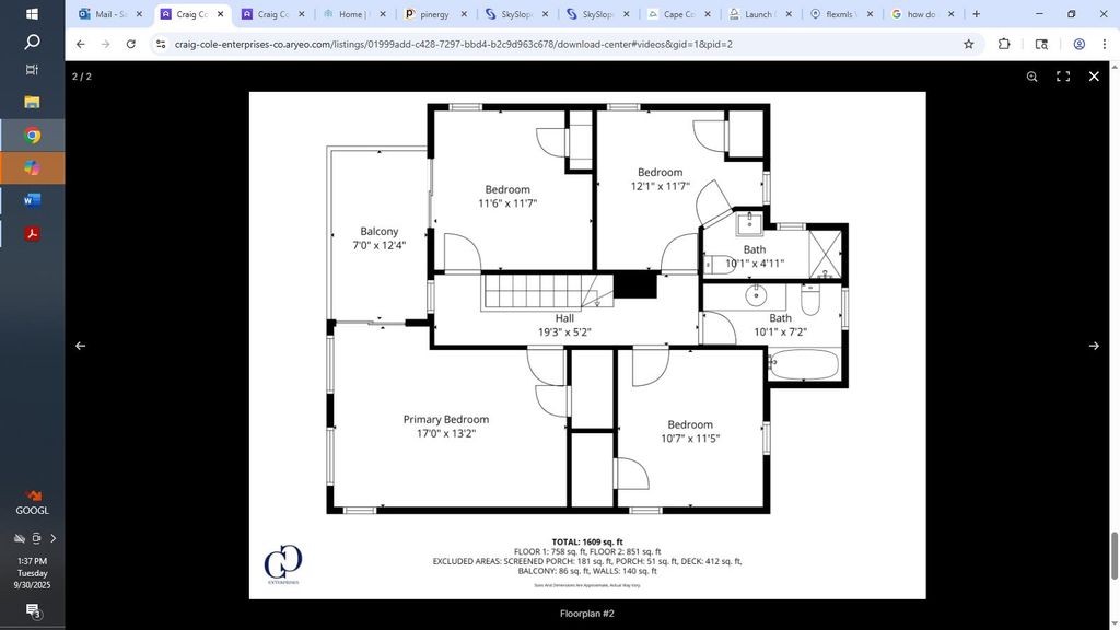
4 beds.
2 baths.
11,326 Sqft.
Payment Calculator
This product uses the FRED® API but is not endorsed or certified by the Federal Reserve Bank of St. Louis.
133 Phillips Road, Sagamore Beach, MA 02562
4 beds
2.5 baths
11,326 Sq.ft.
Download Listing As PDF
Generating PDF
Property details for 133 Phillips Road, Sagamore Beach, MA 02562
Property Description
MLS Information
- Listing: 22504924
- Listing Last Modified: 2026-04-08
Property Details
- Standard Status: Active
- MLS Status: Active
- Property style: Other
- Built in: 1941
- Lot size area: 0.26 Acres
Geographic Data
- County: Barnstable
- Directions: Williston Rd to Bradford.Rt on Phillips.House on Left.
Features
Interior Features
- Flooring: Hardwood, Tile, Laminate
- Bedrooms: 4
- Full baths: 2.5
- Half baths: 1
- Fireplaces: 1
Exterior Features
- Roof type: Asphalt
- Lot description: On Golf Course, Near Golf Course, Waterfront
- View: Water, Beach, Bay
- Foundation: Block
Utilities
- Sewer: Septic Tank
- Heating: Hot Water
Property Information
Tax Information
- Tax Annual Amount: $11,866